




| 所在地 | ふじみ野市鶴ケ舞1丁目 |
|---|---|
| 価格 | 3,080万円 |
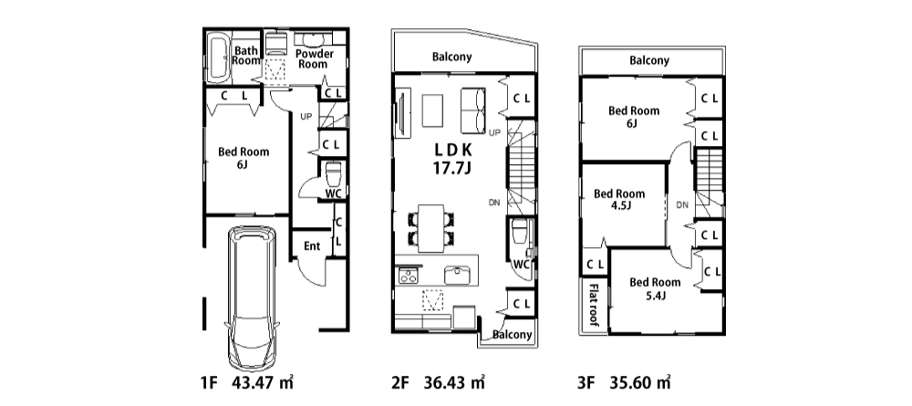
| 間取り | 4LDK |
| 間取詳細 | LDK17.7帖・洋6帖・洋4.5帖・洋6帖・洋5.4帖 |
| 敷地面積 | 72.57u |
| 建物構造 | 木造ガルバリウム鋼板 葺 3階建 |
| 建物面積 | 111.97u |
| 建ぺい率・容積率 | 60% 200% |
| 都市計画 | 市街化区域 |
| 用途地域 | 第二種中高層住居専用市域 |
| 接道状況 | 4.0m私道(持分5.75u) |
| 完成予定 | 2016年5月末日 |
| 地目 | 宅地 |
| 交通手段 | 東武東上線 上福岡駅 徒歩11分、 東武東上線 ふじみ野駅 徒歩13分 |
| 取引形態 | 売主 |
| 権利形態 | 所有権 |
| 引渡日 | 2016年6月初旬 |
| 現況 | 建築中 |
| 設備 | 東京電力・公営水道・公共下水・都市ガス |
| その他 | ・建築確認番号 第15UDI3S建02846号 東武東上線の不動産の事なら、棟立建設にお任せ下さい。 |