










| 所在地 | 三芳町藤久保 |
|---|---|
| 価格 | 成約済 |
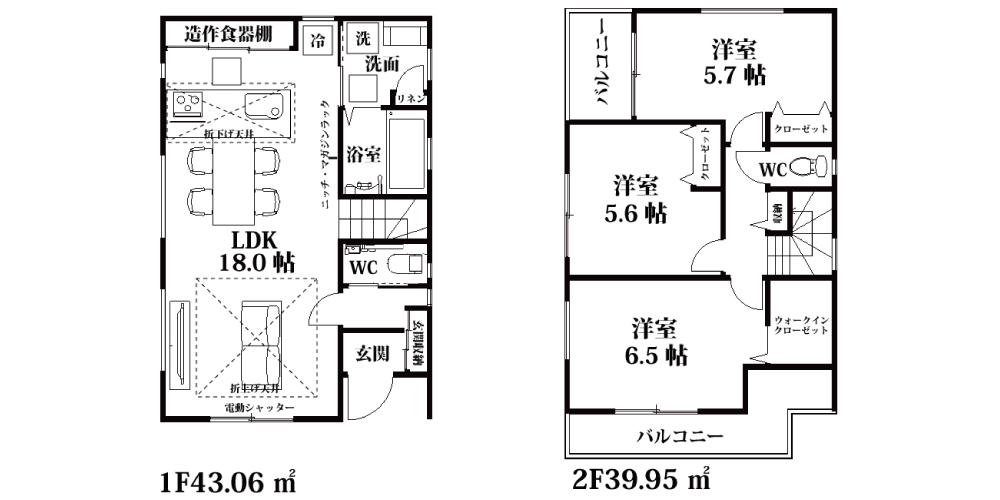
| 間取り | 3LDK |
| 間取詳細 | LDK18.0帖・洋6.5帖・洋5.6帖・洋5.7帖 |
| 敷地面積 | 103.13u(公簿) |
| 建物構造 | 木造 アスファルトシングル 葺 2階建 |
| 建物面積 | 83.01u |
| 建ぺい率・容積率 | 50% 80% |
| 都市計画 | 市街化区域 |
| 用途地域 | 第一種低層住居専用地域 |
| 接道状況 | 南東側6.25m公道 |
| 完成予定 | 完成済 |
| 地目 | 宅地 |
| 交通手段 | 東武東上線 鶴瀬駅 徒歩24分 |
| 取引形態 | 売主 |
| 権利形態 | 所有権 |
| 引渡日 | 即 |
| 現況 | 完成済 |
| 設備 | 東京電力・公営水道・公共下水・個別PG |
| その他 | ・建築確認番号 第SJK-KX255402830号 東武東上線の不動産の事なら、棟立建設にお任せ下さい。 |