








| 所在地 | 富士見市諏訪2丁目 |
|---|---|
| 価格 | 成約済 |
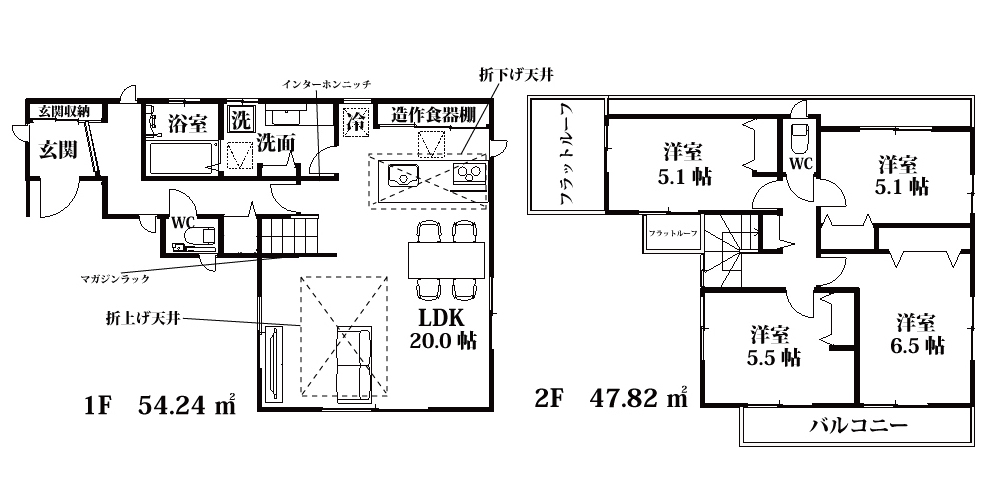
| 間取り | 4LDK |
| 間取詳細 | LDK20.0帖・洋6.5帖・洋5.5帖・洋5.1帖・洋5.1帖 |
| 敷地面積 | 114.00u(公簿) |
| 建物構造 | 木造 ガルバリウム鋼板 葺 2階建 |
| 建物面積 | 102.06u |
| 建ぺい率・容積率 | 60% 100% |
| 都市計画 | 市街化区域 |
| 用途地域 | 第一種低層住居専用地域 |
| 接道状況 | 南西4.0m公道 |
| 完成予定 | 2025年4月 |
| 地目 | 宅地 |
| 交通手段 | 東武東上線 鶴瀬駅 徒歩19分 |
| 取引形態 | 売主 |
| 権利形態 | 所有権 |
| 引渡日 | 2025年4月 |
| 現況 | 完成 |
| 設備 | 東京電力・公営水道・公共下水・都市ガス |
| その他 | ・建築確認番号 第SJK-KX245420880号 東武東上線の不動産の事なら、棟立建設にお任せ下さい。 |